项目介绍
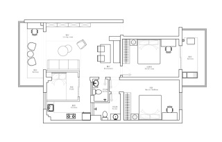
本案位于厦门思明区云顶花园199号,装修项目为厦门3室2厅1厨1卫二手房装修。3室2厅1厨1卫面积100平方米,业主喜欢简约的装修风格,目前房子的装修步骤流程是安装阶段。
装修进度及动态
邓世铨 现场监理 2022年01月13日 17:57
柜子安装、灯具、开关面板安装。
邓世铨 现场监理 2021年11月18日 17:47
涂料施工现场
邓世铨 现场监理 2021年11月12日 19:21
涂料进场施工,安排上。
邓世铨 现场监理 2021年11月02日 19:19
窗台石铺贴。
邓世铨 现场监理 2021年10月25日 18:51
原有防盗网,重新安装。
邓世铨 现场监理 2021年10月19日 18:51
老房子,水电局部改造施工。
邓世铨 现场监理 2021年09月08日 16:20
砌墙
邓世铨 现场监理 2021年09月02日 16:11
前几天已经做好保护,拆除施工现场。
邓世铨 现场监理 2021年08月31日 16:08
该项目业主选择局部改在,没有全部重新拆除掉,重新装修。所以需要对原有不装修区域,先进行保护,再做拆除。
邓世铨 现场监理 2021年08月30日 16:07
开工大吉
曾进隆 室内设计师 2021年08月27日 15:15
设计平面布局,搞定。可以择日开工了。
健-康



