项目介绍
本案位于厦门湖里区金宝大酒店,装修项目为厦门酒店酒店会馆装修。酒店面积400平方米,业主喜欢现代的装修风格,目前房子的装修步骤流程是完工阶段。
装修进度及动态
童峰桦 现场监理 2021年05月28日 18:39
45天工期,完工收尾,完美交付。
童峰桦 现场监理 2021年05月25日 18:38
厦门市漳平商会,招牌已经做好。
童峰桦 现场监理 2021年05月23日 18:32
商会装修项目工作今天搞卫生,明天都可以按排网络按装,控调试,音响,监控,软装,字画,绿色植物,办公家具,办公用品,电脑,打印复印一体机,进场,26号之前场所所有的布置工作完成。
童峰桦 现场监理 2021年05月20日 18:28
展示柜,墙面造型,灯具安装到位。
童峰桦 现场监理 2021年05月18日 18:24
柜子,展柜安装。
童峰桦 现场监理 2021年05月12日 18:22
效果出现
童峰桦 现场监理 2021年05月08日 18:19
涂料施工。
童峰桦 现场监理 2021年05月06日 14:37
赶工期,赶工期,吊顶施工现场。
谢和彩 室内设计师 2021年04月26日 18:55
日常工地巡检。
童峰桦 现场监理 2021年04月26日 18:54
木作石膏板隔墙,已经完工。目前对螺丝钉,进行防锈处理。
童峰桦 现场监理 2021年04月22日 18:51
二楼泥水找平,施工现场。
童峰桦 现场监理 2021年04月20日 18:46
本周计划安排
1,开工及上材料,二楼地面找平施工。
2,二楼石膏板墙进场及新砌墙;
3,一楼地台制作及卫生间找平施工。
童峰桦 现场监理 2021年04月19日 18:35
开工大吉,接下来的工地现场。所有事宜,都由我来负责。
谢和彩 室内设计师 2021年04月16日 18:35
占位符,效果图在路上
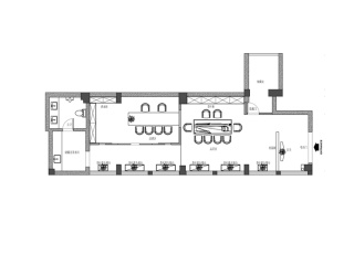
谢和彩 室内设计师 2021年04月16日 18:34
设计平面已经敲定。
保密



